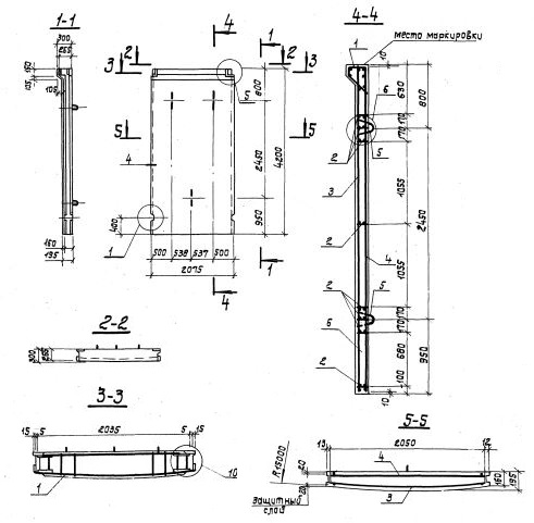
ПСЦ 3-42-1
Характеристики изделия:
| Параметр | Значение |
|---|---|
| Длина | 2075 мм |
| Ширина | 300 мм |
| Высота | 4200 мм |
| Масса | 4100 кг |
| Нормативный документ | Серия 3.900.1-11 |
Цена:
Рассчитать стоимостьПСЦ 3-42-1 по Серии 3.900.1-11
Панель стеновая для цилиндрических сооружений с радиусом кривизны 15 м; высотой 4,2 м; первого типа по нагрузке.