4ДК 6.1
Характеристики изделия:
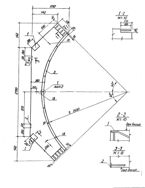
| Параметр | Значение |
|---|---|
| Длина | 4184 мм |
| Ширина | 1092 мм |
| Высота | 400 мм |
| Масса | 1900 кг |
| Нормативный документ | Серия 3.702.1-4 |
Цена:
Рассчитать стоимостьБалка днища криволинейная 4ДК 6.1 по Серии 3.702.1-4.
| Параметр | Значение |
|---|---|
| Длина | 4184 мм |
| Ширина | 1092 мм |
| Высота | 400 мм |
| Масса | 1900 кг |
| Нормативный документ | Серия 3.702.1-4 |
Балка днища криволинейная 4ДК 6.1 по Серии 3.702.1-4.