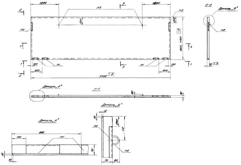
ПСЛН AV-1,2-6-711
Характеристики изделия:
| Параметр | Значение |
|---|---|
| Длина | 5980 мм |
| Ширина | 70 мм |
| Высота | 1185 мм |
| Масса | 960 кг |
| Нормативный документ | Серия 1.432-10 |
Цена:
Рассчитать стоимостьПредварительно напряженные панели из легких бетонов, армированные сталью класса A-V, по Серии 1.432-10.
ПСЛН AV-1,2-6-711 Парапетная панель.